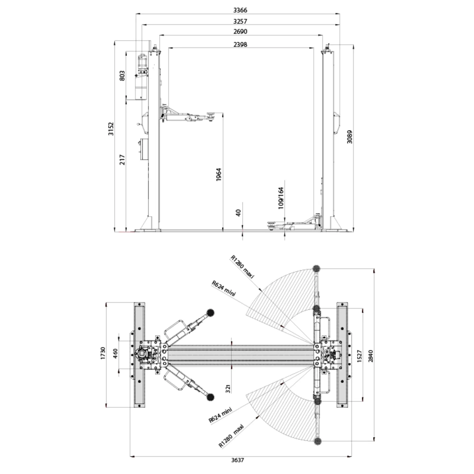
L'élévateur hydraulique KXH32W avec manutention est conçu pour offrir une fiabilité maximale et une robustesse à toute épreuve. Son système 100 % hydraulique garantit des performances constantes et un entretien limité, idéal pour un usage intensif en atelier. Ce modèle se distingue par sa structure monobloc en H, sa capacité de levage de 3,2 tonnes, et son poids de 884 kg, gage de solidité et de longévité.
Chaque colonne est équipée :
- d’un vérin hydraulique avec clapet parachute,
- d’une chaîne offrant une course de levage importante,
- d’un câble de synchronisation avec contrôle électrique,
- et de 16 positions de sécurité mécanique, assurant une stabilité optimale en toute circonstance.
Contrairement aux systèmes à vis sans fin, sujets à l’usure et aux remplacements coûteux, la technologie hydraulique limite les pièces en mouvement et supprime les contraintes de maintenance réglementaire lourde liées au remplacement de vis, écrous porteurs ou de sécurité.
