
Faites face aux tâches de pressage les plus exigeantes avec cette presse à commandes hydropneumatiques de qualité industrielle, dotée d'une capacité de 25 tonnes.
Cette presse est conçue pour offrir une performance exceptionnelle dans une variété d'applications, des ateliers aux garages.
✔️ PRÉCISION
Les vérins à déplacement latéral permettent un positionnement précis et une répartition uniforme de la force sur la pièce à travailler, assurant des résultats de haute qualité. La pédale d'approche rapide hydropneumatique permet un positionnement rapide et précis des matériaux à presser, améliorant ainsi l'efficacité et la productivité.
✔️ SÉCURITÉ
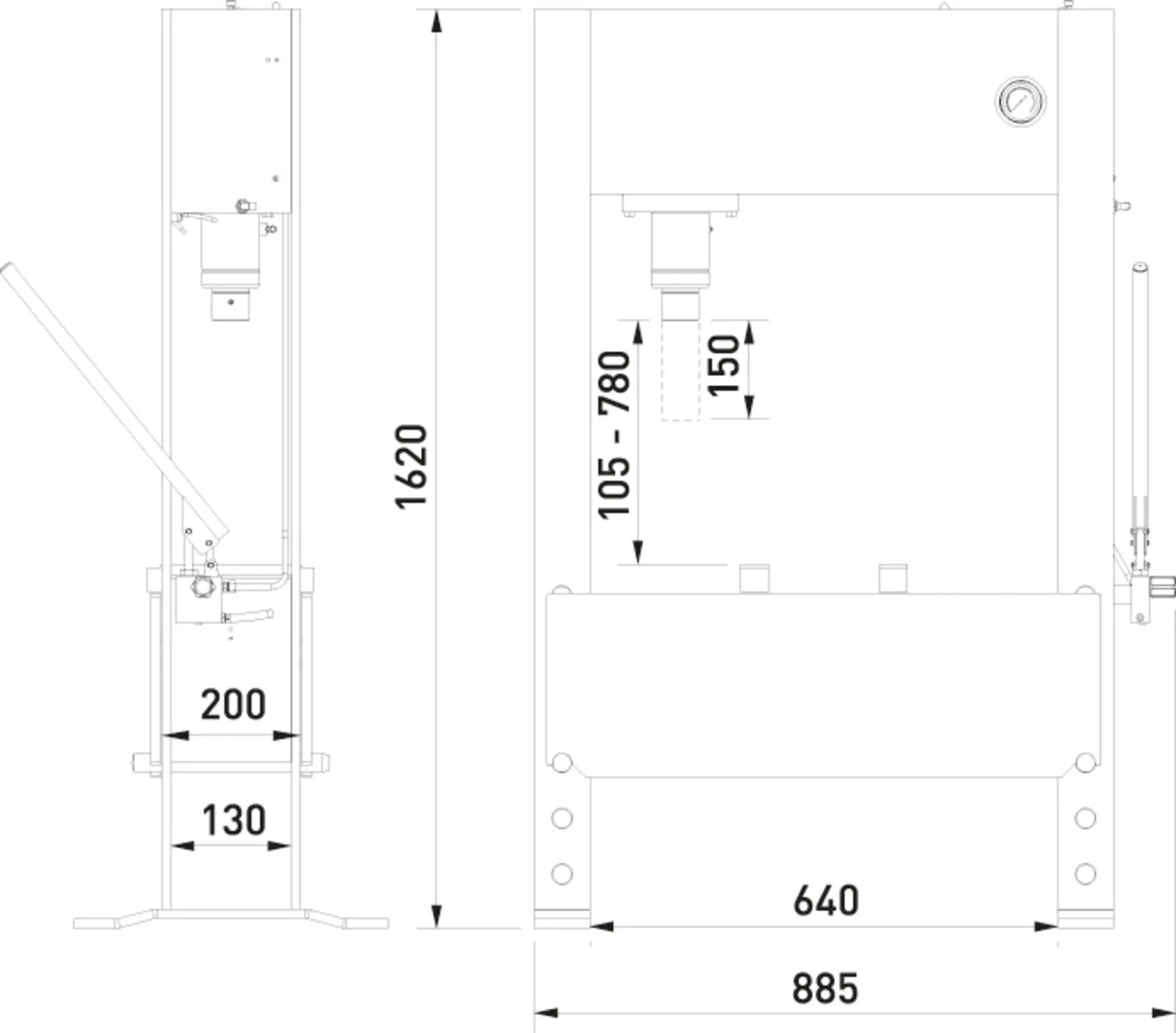
La sécurité hydraulique assure un fonctionnement fluide et fiable en cas de surcharge, tout comme le manomètre intégré qui indique la pression en temps réelle.
✔️ CARACTÉRISTIQUES
- Capacité : 25T
- Pompe hydraulique : Manuelle
- Course du vérin : 150mm
- Montée/descente de la table : Treuil en option
- Alimentation ai comprimé : 10 à 12 bar
- Poids : 135kg
🔄 Garantie : Structure métallique 10ans • Pompes et vérins 3ans • Autres pièces 1an
Norme CE - Usage intensif
